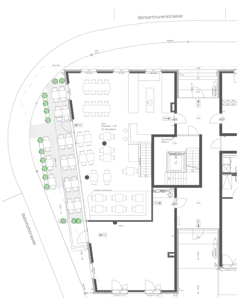
Neubau MFH Bülach